Experience
h
w e d e v e l o p a n d s e l l s o l u t i o n s f o r a d v a n c e d e c o n o m i e s
w e a r e w h a t w e s h a r e
Within this framework, we measure the impact of each of our actions to ensure their effectiveness and long-term relevance. We integrate environmental, social, and economic criteria at every stage of our projects, prioritizing responsible materials, optimized processes, and transparent governance. Our ambition is to create a replicable model that can be deployed across different territories while respecting their cultural and social specificities. By strengthening stakeholder engagement and fostering continuous innovation, we consolidate a sustainable approach that transforms challenges into opportunities and positions our achievements within a shared progress dynamic.
a social solution social houses and apartments are available all sizes with nice finishing and high quality low cost solutions available for all areas high speed construction process all furnished solutions are available rental program for investors 10 years guarantee on the houses attractive design and high specifications no shutdown & monitored services free energy, free hot water, less difficulties mortgage accessibilities construction schedule reduce by 50 %
beHome enables you to store or sell over 70 % of the energy you produce. Our advanced storage solutions are designed to optimize your energy usage, including the opportunity to sell during peak hours when demand and rates are highest. By combining smart technology with sustainable design, beHome not only eliminate your energy costs but also empowers your home to be more independent, efficient, and environmentally responsible.
beHome
c o m e a n d v i s i t u s
a response tailored to families
The program
The social housing market in advanced economies is under significant pressure. Many countries face a shortage of affordable housing. There are 400,000 homeless minors in Europe, 14.5 million children living in poor housing conditions, and 5 million families with children experiencing energy poverty. Our housing programs deliver solutions that improve access to mortgages, stimulate the economy with a direct impact on families’ budgets. We provide European design and standards, competitive prices for all projects, high quality, sustainable house and reliable energy efficiency. We help eliminate poor living conditions and reduce high energy costs.
beHome
Copyright © 2024 PWG Europe SL. All rights reserved.
English - United Kingdom
solutions tailored to families
Office : PWG Europe SL office and factory Alicante - Spain For any inquiry, please contact us, we will reply shorthly : contact@pwgeurope.com
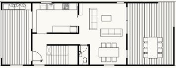
the living area - 100 m 2
Homeownership
it’s not a privilege but a necessity
Houses
general description
Learn more
About
h
h
h
h
Smart cities programs
Villages programs
f r
|
e s
g
|
Link to download - forms
beHome for advanced economies is an individual offer designed for families who aspire to homeownership. From low-income to high-income households, this program is dedicated to reducing housing costs and eliminating energy expenses. Our technologies and expertise allow us to combine tailored solutions to help you achieve your objectives. Access to homeownership and comfort is not a privilege.
beHome is a complete, tailor-made living solution for modern families. From affordable homes to exclusive luxury villas, every unit integrates our signature smart roofing system, combining solar energy production and solar hot water technology to power the entire home efficiently and sustainably. Paired with our advanced energy storage system, your home becomes fully energy-independent, delivering exceptional comfort, modern amenities, long-term reliability, and true peace of mind for every member of the family.
HOMES CAN ALSO BE ACCESSIBLE. We know how to make quality housing truly affordable. By reducing construction and delivery costs by 25 to 40% compared to the market, we offer families a realistic path to comfortable, efficient, and sustainable homes. This approach strengthens purchasing power, improves quality of life, and secures a better future for the next generations.
luxury villa - 350 m 2
middle-class villa - 100 m 2
middle-class villa - 100 m 2
luxury villa - 350 m 2
the living area - 350 m 2
the master bedroom - 350 m 2
a new standard of comfort and control
100 sqm or more - individual project flat roof or inclined walls made of galvanized steel structure concrete panels as cladding light concrete as insulation for external walls high specifications for fire and thermal exchange engineering following Eurocode bathrooms with storage space bedrooms with storage space kitchen equipped balconies 100 sqm of solar modular roofing including a few panels of solar hot water
Owning a home
means freedom, security, and sustainable living
Housing programs
Emerging economies
Housing programs
Advanced economies
OUR PROGRAMS
Experience
a social solution  •	social houses and apartments are available •	all sizes with nice finishing and high quality •	low cost solutions available for all areas •	high speed construction process •	all furnished solutions are available •	rental program for investors •	10 years guarantee on the houses •	attractive design and high specifications •	no shutdown & monitored services •	free energy, free hot water, less difficulties  •	mortgage accessibilities •	construction schedule reduce by 50 %
beHome enables you to store or sell over 70 % of the energy you produce. Our advanced storage solutions are designed to optimize your energy usage, including the opportunity to sell during peak hours when demand and rates are highest. By combining smart technology with sustainable design, beHome not only eliminate your energy costs but also empowers your home to be more independent, efficient, and environmentally responsible.
beHome
solutions tailored to families
the living area - 100 m 2
Homeownership
it’s not a privilege but a necessity
Houses
general description
beHome for advanced economies is an individual offer designed for families who aspire to homeownership. From low-income to high-income households, this program is dedicated to reducing housing costs and eliminating energy expenses. Our technologies and expertise allow us to combine tailored solutions to help you achieve your objectives. Access to homeownership and comfort is not a privilege.
beHome is a complete, tailor-made living solution for modern families. From affordable homes to exclusive luxury villas, every unit integrates our signature smart roofing system, combining solar energy production and solar hot water technology to power the entire home efficiently and sustainably. Paired with our advanced energy storage system, your home becomes fully energy-independent, delivering exceptional comfort, modern amenities, long-term reliability, and true peace of mind for every member of the family.
HOMES CAN ALSO BE ACCESSIBLE. We know how to make quality housing truly affordable. By reducing construction and delivery costs by 25 to 40% compared to the market, we offer families a realistic path to comfortable, efficient, and sustainable homes. This approach strengthens purchasing power, improves quality of life, and secures a better future for the next generations.
middle-class villa - 100 m 2
middle-class villa - 100 m 2
luxury villa - 350 m 2
the living area - 350 m 2
the master bedroom - 350 m 2
a new standard of comfort and control
100 sqm or more - individual project flat roof or inclined walls made of galvanized steel structure concrete panels as cladding light concrete as insulation for external walls high specifications for fire and thermal exchange engineering following Eurocode bathrooms with storage space bedrooms with storage space kitchen equipped balconies 100 sqm of solar modular roofing including a few panels of solar hot water
Owning a home
means freedom, security, and sustainable living
Copyright © 2024 PWG Europe SL. All rights reserved.
English - United Kingdom
Learn more
About
Smart cities programs
Villages programs
Link to download - forms
Housing programs
Emerging economies
Housing programs
Advanced economies
The program
beHome
w e d e v e l o p a n d s e l l s o l u t i o n s f o r a d v a n c e d e c o n o m i e s
The social housing market in advanced economies is under significant pressure. Many countries face a shortage of affordable housing. There are 400,000 homeless minors in Europe, 14.5 million children living in poor housing conditions, and 5 million families with children experiencing energy poverty. Our housing programs deliver solutions that improve access to mortgages, stimulate the economy with a direct impact on families’ budgets. We provide European design and standards, competitive prices for all projects, high quality, sustainable house and reliable energy efficiency. We help eliminate poor living conditions and reduce high energy costs.
w e a r e w h a t w e s h a r e
Our company is committed to help populations. We are developing solutions for disadvantaged communities as a first step to improve life quality of these populations. We are providing solutions with sustainability, values, growth, improving life quality and comfort. Social responsabilities is part of our culture as a company, but we can do more. We try to share our life experience as a team to innovate and create strong answer to population who need it. Our group of company will continu to develop and propose solutions at a low cost, with higher standards. All need chances, let’s try to offer chances with a new departure of prosperity, health, ideas and projects.
Office : PWG Europe SL office and factory Alicante - Spain For any inquiry, please contact us, we will reply shorthly : contact@pwgeurope.com
c o m e a n d v i s i t u s
OUR PROGRAMS
luxury villa - 350 m2 luxury villa - 350 m2
f r
|
e s
g
|
f r
e s
|
|